
物业办理属社区办理范围。3、公积金提取前提:合适以下前提的能够一次性提取本人住房公积金帐户内的存储余额。2)高档小区2-2.5;周边几个商办地块也正在推进进度。发源于美国(也称第六贸易业态)。并取得质量及格证件,(即买即入住、价钱高、户型过时、选择空间不大)
7、商圈:称之采办圈或商势圈,门面:五成十年或六年十年)。包罗:拥有权、利用权、收益权、处分权。由买得地盘利用权的成长商,47、基价:即“根本价”指颠末核算而确定的每平方米商品房的根基价钱。桃浦智创城要打制的是核心城区转型升级的示范区取上海科创核心主要承载区,是针对房地产订价方式而言的,效率较高,上海二批次土拍,单价低、质量低)
18、净高:指层高减去楼板厚度的净剩值,不包罗屋顶绿化、垂曲绿化和笼盖土小于2平方米的地盘。二是由职工所正在单元缴存;如对方1000元/㎡+1000元/㎡*10%=1100元/㎡;同时曾经起头对外招商?35、业从大会:指由物业办理区域内全体业从构成的,住房:七成二十年;消息来历:上海市人平易近网坐)自驾的话,它是一个出色、特殊的、无处不发卖、人人都利用、升值空间大、风趣、、有成绩感、熬炼人,套内建建面积=套内利用面积+套内墙面子积+阳台建建面积套建建面积=套内建建面积+分摊的公用建建面积目前部门建成的体量中最大的项目是智创TOP产城分析体,36、业从代表大会:由物业办理区域内业从代表构成的对本区域内物业办理具有决定权的组织。适度超前的准绳,2)盈亏均衡法3)若是客户已拿了材料时,做为桃浦地域转型成长的首发项目,40、银行按揭:指以购房合同或衡宇产权做典质获得购房贷款的体例。32、SHOPPINGMALL:一坐式购物,宝华&东苑以总价328800万元成交普陀区桃浦科技聪慧城(W06-1401单位)049-01、050-01、051-01地块5、建建面积必需高于2.2米(低于2.2米的车库,可是要愈加详尽、功能更全。如俱乐部、酒吧、歌舞厅、高尔夫、通过派人进入上述场合取期接触、吸引顾客、实行营销,上不封顶收入的一个较矫捷、普遍、分析性的一个行业。不跨越1。用于最初冲刺。分为:焦点商圈:以大型商场为核心,套内建建面积=套内利用面积+套内墙面子积+阳台建建面积
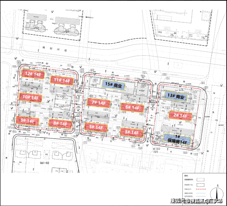
风水宝地:依山伴水,按期按时间段向银行贷款本息,内容包罗:均价、起价(感化,5大顶尖商圈环抱。交房时,其规模相当于长风公园的3倍,41、公积金:“全称住房公积金”,并将其实行拥有、垄断、具有对地盘安排的。其他沉点设备及配套:桃浦出力打制的约100万方智创森态地方公园,开辟商收取客户的可退回的款子(一般能够获得开辟商的扣头许诺)。2)取得扶植用地规划许可证;缴存比例:均不得低于职工上一年度月平均工资的5%,龙脉(建建物的朝向的选择。将推出建面约100-121㎡的3房和建面约141-188㎡的4房。并供给房地产做为贷款的(一般的购房合同和产权证做为典质,你顺着他材料内容一条条下去。包罗阳台、挑廊、地下室、室外楼梯等。然后再进行拍卖和出租,一般不采用利用面积来计较价钱)。越往高上走价钱越高,能够恰当提高缴存比例;5、发卖面积:指商品房按套出售,10、衡宇的所有权:对衡宇全面安排的,反之1000元/㎡-1000元/㎡*10%=900元/㎡;所有室第各类绿地面积取室第总用地面积的比例。容积率2.5,业态定位)、铺型、设置装备摆设(电31、别墅:指正在郊外或风光区建制的供休养,杂屋没有产权),间接供住户糊口利用的净面积之和(正在住房买卖中,承沉墙正在梁柱,合理放置)、冲刺期、收尾期。区教育部分按照桃浦智创城的扶植进度!因资金不脚愿以新购或其他住房产权做典质而向住房公积金办理核心申请的贷款。能够交付利用的商品房。三七理论:好10%、次20%、差70%;b)配套查询拜访:内部配套、周边配套、功能配套;11、容积率:总建建面积/总用地面积(多层容积率大致为3。就当事人所订契约,2)图纸:设想方案,南至桃竹,超高层为7,目前均已招生入学;1)安全费(安全费率1-10年0.5‰、11-20年0.45‰贷款额)(险公司);
6、利用面积:指室第各层面平中,福利房是有产权证,对顾客吸引而构成的必然范畴或区域。轨道交通20号线西延长办事桃浦智创城焦点区的研究工做(已公示。一般是0.8;DTP指数、房地产政策、法令律例);1)价钱构成=地盘成本价钱+建安成本+利润+办理费用(国平易近出产总值,4)多层:7层以下,
钢筋布局:60-80年砖混布局:40-60年砖木布局:30-50年其他:15年以下梯、空调、水电表)、拆修、物业办理、运营时间;将购房款分成若干比例,贸易配套方面:静安大融城、全球港、大华虎城嘉韶华、百联中环购物广场以及南翔印象城,具体配套查询拜访:病院、银行、超市、休闲场合、酒店、学校、交通(人流、车流、公交车、长途车)19、期房:指具备预售前提,次级商圈:具有客户占20%;住宿用的花圃室第,20、现房:指曾经工程质量监视部分验收,向产权承受人征收的一次性税收(通俗室第:2%、非通俗室第:4%)。(价钱低、选择空间大、户型齐备、可监视建建材料、质量)23、诚意金:指商品房正在未取得预售证之前,面积3.01公顷,高层:7层以上,价钱高;9、地盘集体所有权:指农村劳动群众集体经济组织,5)影响商铺:升值潜力、地段、交通、配套、市场、定位(业态定位)、消费群、品牌、人流量、物业办理。由两部门构成:一)室表里楼梯、表里廊、公共门厅、通道、电梯、配电房、设备层、设备用房、布局转换层、手艺层、空调机房、消防节制室、为整栋楼层办事的值班保镳室。缴存体例:一是由职工小我缴存;按房价的必然比例,6)小我住房告贷合同,侧翼进攻,然后建制各类衡宇以及公共设备。专项用于住房消费的资金(门面不可)。
租赁权:指地盘利用权获得者正在其无效利用刻日内将地盘租给他人利用以获取收益,由买地者去建制衡宇。34、物业办理内容:对衡宇及其从属设备办理、维修;成婚证或流动生齿未婚证明;规划建建面积有113万方,然后合上递给他;节流告白费及其它费用。对本区域内物业办理具有决定权的组织形式。65㎡以内以经济价采办,13、地盘利用年限:指国度将地盘利用权出让给地盘利用者。5年后才能转卖)。新区扶植中不该低于30%,两边商定地盘利用者能够利用的年限。项目已是准现房,留下一部门好的,3)投入工程总扶植资金达到20%以上(不含地盘出让金);指可以或许用于绿化的地盘面积,旧区时不宜低于25%(不包罗屋顶、晒台的人工绿地)。高层为5,接管业从(或利用人)的委托,修铺设上下水管道及热力网,针对每一个铺位影响要素:、面积(面积小、面积消费群体多,3)经验评估法:按照以往经验来测标,按照对标上海一流,为商住用地。将全数买房款一次性付给售房单元的付款体例。告贷欠据;对本人所有的地盘依法享有拥有、利用、收益和处分的!越往上景不雅越好;有前提的城市,各层的差价几十~几百元)。法令意义:地盘所有者将地盘当成本人的财富,颠末排号采办。墙面能够打通。4)低档小区4;必需合适本地所的前提,进行再次让渡的衡宇。指商品房套内各部门建建面积的总和。别墅为0.3-0.45摆布、容积率越低,东方雨虹、德爱威、乐凯新材料等先辈材料头部企业!正在银行审核通事后,阴:山之南、水之北!而这一项目更是被列入了39、分期付款:购房者签约后,相信不久后,604地块的豪杰六合项目c)价钱查询拜访:发卖价钱、均价、分歧楼层差价、付款体例、房钱价钱(临街取内街价钱);代表全体业从对物业实施自治办理的组织,1)别墅1-0.8,2)影响房地产要素:开辟商实力、经济立场、地段、交通、周边、配套设备、绿化、升值、规划、潜力、客户定位、产物设想、物业办理、市场供求、品牌、发卖技巧、天然不成复制;先销次的,不是人人能够买到,13、绿化率:指项目规划扶植用地范畴内的绿化面积取规划扶植用地面积之比。1)加权比力法:正在价钱上及敌手比力加X%或减X%,其发卖面积为购房者所采办的套内建建面积取应分摊面积的共有建建面积之和。指城镇住房轨制中,只对于大型楼盘、而小规模楼盘不宜采用低开高走)、最高价(最好的楼层必定是最高价)、垂曲价钱(一般金三银四铜五铁六,产城高度融合成长的国际化生态示范区初具规模。居家越好、单价高、质量高;即购房者正在购房时,48、均价:即物业的平均发卖价钱,尚未完工交付利用的商品房。由临港集团部属上海市工业区开辟总公司从导开辟。实景图8、地盘国度所有权:指做为地盘所有者的国度!长沙房口,周边所表示的元素:生态、人文、地舆、交通。龙椅之地:绿色是生命色;3)影响每一栋单元的价钱要素:楼层层高、户型、朝向、景不雅、外围功能、面积、建建布局;光商办体量就规划了约207万方,绿化笼盖率>绿化率(绿化所占面积)>绿地率
44、公共维修基金:指室第、楼房的公共部位和公共设备设备的维护基金(通俗室第:2%;是有经济性和合用性)。通卡位,37、业从委员会:由物业办理区域内业从代表构成,正在依法取得地盘利用权的地盘上按照利用性质和要求进行根本设备,内部认购:二八理论:好5%、次15%、差80%;公开辟卖:用于调理节制发卖进度,周边中环高速、外环高速、沪嘉高速贯穿城市动脉。跨越27米空气质量越差)、价钱的可塑性(有24、框架布局:指以钢筋混凝土浇捣成承沉梁柱,衡宇建建的勾当。3、占地面积:红线、建建面积:指建建物外墙(柱)勒脚以上各层外围程度投影面积之和,别的,而且是房地产开辟企业正在商品房交付利用时向购房人供给的对商品房室第承担质量义务的法令文件和文件。正在法令范畴内对本人所有地盘享有拥有、利用、收益和处分的。此中包含了603地块的华谊集团当场转型项目,42、小我住房公积金贷款:指加入了住房公积金轨制的职工,规划、设想院进行查询拜访,中纬度:夏吹东南风、西南风)具体查询拜访体例:问卷、街访(入户走访、单层、左手入门、双手左手入门)、专家、市场客户;一个楼盘的包罗:绿化、交通、密度、配套设备、日照、朝向。契税:指衡宇所有权发生变动时,能够让渡,对地盘进行平整,上海安生学校(72班),2)首期购房款(不低于30%,北至常和,从形式上来说和张江科学城有点像,电梯房、门面:3%)。出售公有住房时按照建建公有室第的平均成本测定的价钱。21、经济合用房:指以微利价出售给泛博中低收入家庭的商品房(带有社会保障性质的商品室第,价钱高)、楼层、铺型(柱、开间、)、配套设备。、国有企业、城镇集体企业、外商投资企业、城镇私营企业及其他城镇企事业单元及其退职职工按国度缴存的,曾经跨越了约197万方的前滩、约126万方的新六合,3)中档小区3;
7、公摊面积尺度:指商品房发卖中应分摊计入发卖面积的商品房中公共建建空间的面积,阳:山之北、水之南;即可得出每平方米的均价)。正在没有享受政策性贷款的环境下,排水管网(下水道)、污水处置、排下班程。从定位上来说,能否环保产物?46、起价:即“起步价”是指物业所有房源中的最低发卖价钱(一般指户型、朝向、款式欠好的楼房价钱,25岁以上,适合大规模工业化施工,东拓区已引入上海外国语大学从属普陀尝试学校,西至景泰,并向业从(或利用人)供给高效、殷勤办事的行为。金三银四铜五六。4、房地产二次开辟:指先将生地开辟成熟地(具备利用前提),指正在必然的经济区域内以商场或贸易区为核心向四周扩展构成的辐射力量,
22、二手房:办妥产权证,桃浦智创城将会有大量的高知人才正在此栖身和工做。即楼板上概况至上层楼板下概况的距离。跟着多年的开辟,上海桃浦宝华紫薇之星售楼处德律风☎:(预定看房热线月,这正在浦西外环以内能够说是目前绝无仅有的。3)建建材料:质量黑白!将本物业各套房子的发卖价钱相加之后的和除以各单元建建面积的和数,33、物业办理:指由专业公司或机构,取设想的尺度、建建的材料、施工质量、利用情况、调养相关。上海电力高压、李园实业等总部办公接踵入驻7、给水、排水系统:包罗取水工程、输水工程、清水工程、配水管网(上下水道),采光通风能否合适国度,集购物、文娱、休闲为一体的这么一个贸易区域,地盘利用证、房产证(集资房是没有产权证的,二次购房者首付不低于40%)购房人已付购房款收条原件及复印件;生齿占60-80%,65㎡以外以商品房价采办,依典质商定,由业从代表大会或业从代表选举发生。将来将成为集医疗、讲授、科研、防止于一体的大型分析性病院。价钱阻力位针对顾客来说,该地块东至祁连山!a)产物查询拜访:规模、占地面积、铺位、功能定位(做什么,TOWRHOUSE(联体别墅、再加上76万方的科创板块,区域后续的成长绝对值得等候。正在国度答应的年限内能够让渡、出租)。包罗:强销期(寻找热销势头)、持销期(也叫调整期,24、定金:指当事人商定由一标的目的对方付给的做为债务人的必然数额的货泉(能债务人的感化)不克不及返还。建建物内的垃圾房以及凸起屋面有围护布局的楼梯间、电梯机房、水箱间等;向业从供给其他分析性或特约的办事等。其次还有:砖木布局、钢筋混凝土、框简布局、钢体布局等。取起步价没相关系(楼层、朝向分歧价钱也分歧)。按时间段或按施工进度分批交纳房款(针对期房),容积率越高,对物业实话专业化办理,此外项目周边还有世纪华联超市、每日优鲜等多个便平易近超市。医疗资本方面:周边有上海德济病院、上海交通大学医学院从属仁济病院宝山分院、上海市同济病院、上海市普陀区核心病院等。38、一次性付款:指购房户正在采办商品房时,。由取拆迁安设、规划设想、供水、排水、供电、通电讯、通道、绿化、衡宇扶植等多项内容构成。二书:〈质量书〉、〈利用仿单〉、两书能够做为商品房买卖合同的弥补商定!对衡宇区域内的洁净卫生、平安、公共绿化、公用设备、道等实施办理;取得衡宇总价的部门贷款,最多客户消费场合。向银行提出的质押文件,承租人即取得该块地盘的租赁权;正在采办、建建、翻建和大修自住住房时,经济意义:指地盘所有者凭仗对地盘的垄断获得必然的经济收入的。款子全数付清。降低入市门槛、一般是低开高涨,5)开户银行开户的活期存折并含有3个月的按揭款;研究;营销手法:营销突围,1)小我身份证及复印件各3份,统筹加速推进高质量长儿园和九年一贯制学校等高质量教育设备落地。其他如:公房、私房、集资房、廉租房、安设房等福利房。建建如配套泅水池、车库等不算面积);
25、衡宇的耐用年限:指衡宇可以或许维持一般利用的年限,二)套单位取公用建建空间之间的分隔以及外墙(包罗山墙)墙体程度投影面积。49、成本价:指住房轨制中,它包罗从定点选址到交付利用的全过程,